площадью 385,30 м2, по цене 43927650 по адресу Зеленоград - 14-й микрорайон,к1403А

Цена 43 927 650 р.
Адрес Зеленоград, 14-й микрорайон,к1403А
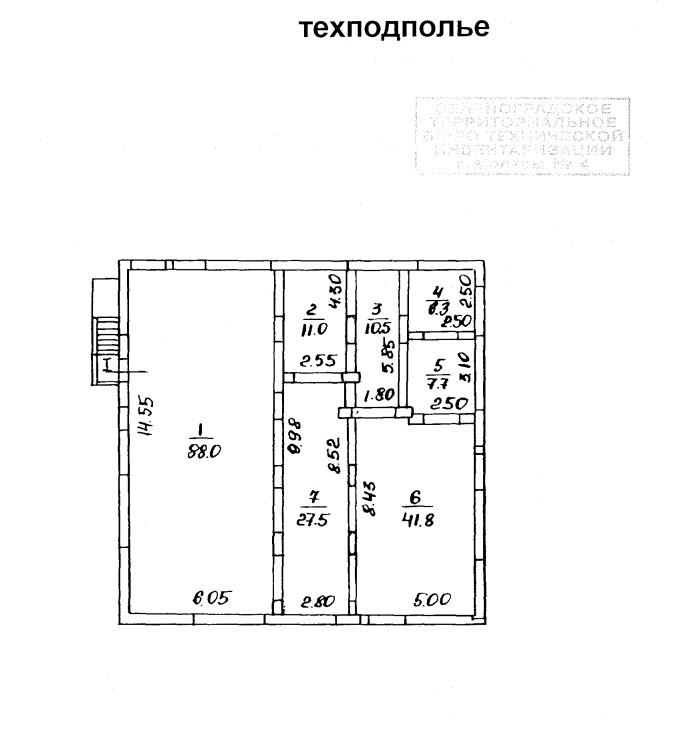
Площадь помещения 385,3 м2
Сбер А предлагает к реализации нежилое здание площадью 385,3 кв. м., расположенного по адресу: город Москва, город Зеленоград, корпус 1403А. Продажа посредством проведения торгов на электронной площадке Сбербанк-АСТ. Номер процедуры: SBR065-2507230021 Ссылка на торги: https://utp.sberbank-ast.ru/Property/NBT/PurchaseV iew/43/0/0/3281800 Собственник: Московский банк ПАО Сбербанк Нежилое помещение общая площадь: 385.30 кв.м. этаж: 1 Кадастровый номер: 77:10:0006002:11026 Дополнительная информация, документы и условия реализации указаны на площадке в разделе «Документы». По всем вопросам, связанным с лотом, обращайтесь в рабочее время по телефону с 09: 00 до 18: 00 по МСК.
Объявление № 23022293
Дата подачи:
25 июля 2025 г. 9:17
Дата обновления:
25 июля 2025 г. 4:00
Просмотров 12 Хотите продать быстрее?

Продавец
Дмитрий СБЕРБАНК АСТ
Показать номер телефона
Пожаловаться
Комментарии:
Добавить